极速下载站 —— 提供优质软件下载服务,感受全新的极速下载体验!

最近更新 | 软件专题 | 软件分类 | 软件排行

您的位置:极速下载站资讯首页软件教程电脑软件教程 → Sweet Home 3D官方下载家庭蓝图导入教学

Sweet Home 3D官方下载家庭蓝图导入教学

时间:2021-05-28 12:33:37  作者:无名  浏览量:55

Sweet Home 3D是一款优秀的室内设计软件,使用Java编程的插件或通过基于其Model View Controller体系结构开发派生版本来扩展Sweet Home 3D的功能,从29种语言中选择在Sweet Home 3D用户界面中显示的语言及其丰富的帮助。
Sweet Home 3D官方下载家庭蓝图导入教学
Sweet Home 3D官方下载家庭蓝图导入教学图1
导入家庭蓝图
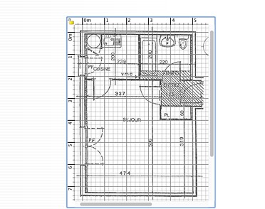
第一步不是强制性的,但可以加快现有房屋墙壁的绘制速度。因此,请尝试查找房屋的蓝图并对其进行扫描(如果尚未进行扫描),以确保图像正确旋转。不要在Sweet Home 3D中导入大文件,该图像应该是一个辅助工具,而不是某些艺术品!
选择“计划”>“导入背景图像...”菜单以显示向导,该向导可帮助您选择和缩放图像文件。
Sweet Home 3D官方下载家庭蓝图导入教学
Sweet Home 3D官方下载家庭蓝图导入教学图2
1单击选择图像,然后在文件对话框中选择您的图像。Sweet Home 3D支持BMP,JPEG,GIF或PNG格式。本教程中使用的扫描图像可从http://www.sweethome3d.com/examples/userGuideBluePrint.jpg获得。
2加载图像后,单击“继续”。
3 通过移动图像中绘制的彩色线的端点来定义图像的比例,以使该线与已知长度匹配。然后在“绘制的线的长度”字段中键入该线的实际长度,然后单击“继续”。
4 在计划中定义图像的原点,即图像中的点与家庭计划中的点(0,0)匹配。然后点击完成。
关闭向导后,您的图像将以选定的比例显示在家庭计划网格的后面,如图5所示。如果选择了错误的比例或位置,请从菜单中选择“计划”>“修改背景图像...”进行编辑。菜单。
Sweet Home 3D官方下载家庭蓝图导入教学
Sweet Home 3D官方下载家庭蓝图导入教学图3
绘图墙
墙创建模式工具
要绘制墙,请首先单击工具栏中的“创建墙”按钮。
在新墙的起点处单击家庭计划,然后在其终点处单击或双击该计划。只要您不双击或按Escape键,每次单击都会指示当前墙的相对点和下一个墙的起点。
墙创建模式工具
为了帮助您精确绘制墙壁,请使用墙壁工具提示,对齐线并使用“缩放”按钮更改平面比例。您也可以在按Enter键之后输入要创建的墙的长度和角度。
绘制墙时不要考虑门窗,因为Sweet Home 3D会自动计算墙中放置孔的孔。如图6所示,在平面图和3D视图中同时绘制了墙壁,并且可以通过在按住鼠标左键的同时移动鼠标来随时在3D视图中调整视点。
Sweet Home 3D官方下载家庭蓝图导入教学
Sweet Home 3D官方下载家庭蓝图导入教学图4

Sweet Home 3D 6.1 中文版

Sweet Home 3D图片
  • 软件性质:国外软件
  • 授权方式:免费版
  • 软件语言:简体中文
  • 软件大小:50574 KB
  • 下载次数:1279 次
  • 更新时间:2021/5/28 9:46:40
  • 运行平台:WinAll...
  • 软件描述:Sweet Home 3D 是一个免费的室内装潢设计软件,它能帮你通过二维的家居... [立即下载]

相关资讯

相关软件