极速下载站 —— 提供优质软件下载服务,感受全新的极速下载体验!

最近更新 | 软件专题 | 软件分类 | 软件排行

您的位置:极速下载站资讯首页软件教程电脑软件教程 → CAD快速看图工具设置测量比例的操作教程

CAD快速看图工具设置测量比例的操作教程

时间:2020-05-30 11:48:12  作者:无名  浏览量:52

cad快速看图是一款无需安装AutoCAD就可以直接查看DWG图纸的一款看图工具,软件特色是非常小巧浏览快速支持查看天正建筑、天正给排水、天正暖通、天正电气图纸的产品,是Windows平台比较好用的CAD看图工具。小编教大家学习CAD快速看图设置测量比例的操作教程技巧,希望可以帮助大家。
CAD快速看图设置测量比例的操作教程
CAD快速看图工具设置测量比例的操作教程
CAD快速看图设置测量比例的操作教程图1
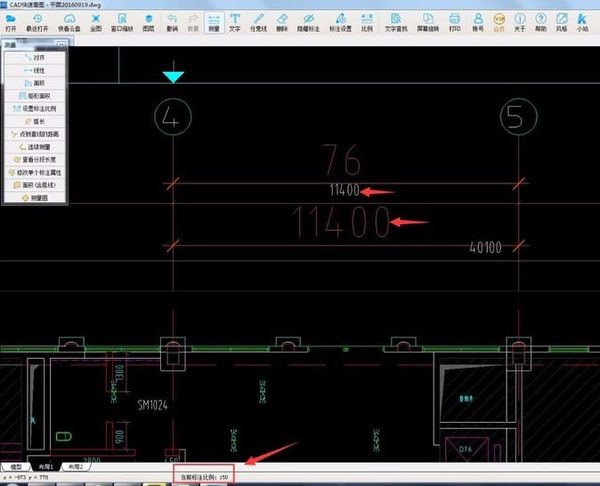
我们首先在布局或大样本测量中进行测量,会遇到测量结果和标注不一致,如图,此时点击工具栏的“调整比例”按钮,进行测量比例调整。
CAD快速看图工具设置测量比例的操作教程
CAD快速看图设置测量比例的操作教程图2
然后,按照鼠标旁边的提示,选择已知长度的线段端点。
CAD快速看图工具设置测量比例的操作教程
CAD快速看图设置测量比例的操作教程图3
这时弹出对话框,填入实际距离(图纸上标注的),点击确定。
CAD快速看图工具设置测量比例的操作教程
CAD快速看图设置测量比例的操作教程图4
此时,立即重新测量线段,发现测量结果与标签一致,查看软件下方的当前比率,您可以看到比例已更改。
CAD快速看图工具设置测量比例的操作教程
CAD快速看图设置测量比例的操作教程图5
相信您已经阅读了上述设置CAD快速查看图的测量比例的具体操作过程,大家都学会了吧!

CAD快速看图 5.10.0.62 官方版

CAD快速看图图片
  • 软件性质:国产软件
  • 授权方式:免费版
  • 软件语言:简体中文
  • 软件大小:21414 KB
  • 下载次数:45746 次
  • 更新时间:2020/5/30 3:43:10
  • 运行平台:WinAll...
  • 软件描述:CAD快速看图是目前比较小、比较快的CAD看图软件,全面支持各个版本DWG图纸直... [立即下载]

相关资讯

相关软件